2025.05.01
Faidostrasse 11&12
News

Unser Projekt an der Faidostrasse 11 wird im Rahmen des Open House Basel 2025 der Öffentlichkeit zugänglich sein.

2025.01.09
Atlas des Dazwischen - The Monuments of Oftringen
News

Im Rahmen des Jahresthemas 2024/2025 «da-zwischen» setzen wir uns im Masterstudiengang mit den Agglomerationsräumen der Schweiz auseinander. Diese Gebiete sind das Ergebnis einer jahrzehntelangen Verstädterung, in deren Folge heute rund 6,6 Millionen Menschen, 74 % der Schweizer Wohnbevölkerung, in 52 Agglomerationen leben. Nahezu die Hälfte aller Schweizer Gemeinden ist Teil einer solchen Agglomeration.

In diesem Semester interessiert uns jedoch weniger die statistische oder politische Dimension dieser Entwicklung, sondern vielmehr die räumlichen und architektonischen Potenziale der Agglomerationsräume. Wir untersuchen ihre Qualitäten und Defizite sowie das Spannungsfeld zwischen dem Generischen und dem Spezifischen, das «da-zwischen», das diese Räume prägt.

2024.12.20
Josefstrasse
News

Der Umbau der Büroräumlichkeiten an der Josefstrasse in Zürich ist fertig.

Birmensdorferstrasse
Refurbishment
Bahnhof Süd Rüschlikon
Competition
Ribetschi Park
Project
2018.12.07
Ribetschi Park under construction
News

The construction of Ribetschi Park has started. We built a masterplan that includes a range of different housing typologies, public promenades and a unifying park. The new neighborhood will provide 15 housing units.

2017.12.20
Grundrissfibel Museumsbauten
News

Neubau Naturhistorisches Museum und Staatsarchiv Basel

Centre opérationnel MSF
Competition
2017.10.30
Nouveau Centre Opérationnel MSF à Genève
News

In collaboration with Tuñón&Ruckstuhl Architekten we’ve been chosen to participate in the competition for the headquarter for Médecins Sans Frontières in Geneva. The headquarter project is designed to reflect and support the values of Médecins Sans Frontières.

Badhöchi
Refurbishment
Naturhistorisches Museum und Staatsarchiv Basel
Competition
2015.08.25
Neubau Naturhistorisches Museum und Staatsarchiv Basel
News

STUDIOZURICH and LIN Architects win 4th Prize for the New Museum of Natural History and State Archives in Basel.

Markthalle und Ringkuhkampfarena Raron
Competition
2015.05.16
Markthalle und Ringkuhkampfarena in Raron
News

Open competition, final 10

2015.04.24
Badhöchi
News

STUDIOZURICH is commissioned for the refurbishment of a farmhouse in the Zürich region.

Zénauva
Project
Forhölzliweg
Project
Hegetsbergstrasse
Project
Faidostrasse 11&12
Project
2013.04.03
Current construction site image
News

Our project Faidostrasse 11 & 12
nears completion.

Supercomestibles
Project
2012.10.02
Urban Manufacturing / Manufacturing the Urban
News

STUDIOZURICH participates in the Urban Manufacturing / Manufacturing the Urban experiment initiated by ETH Zürich and BHSF Architects.
Our collaboration with Intercomestibles is exhibited during the international conference reArt:theUrban at the Theaterhaus Gessnerallee in Zürich.

Rotary
Competition
2012.02.02
X x Houses
News

STUDIOZURICH is commissioned for a study for a sustainable housing development with approximately 10 unites in the Fribourg region.

Herzog
Refurbishment

About

Laura Schneider Architektur / Studiozurich

ist ein Architekturbüro mit Sitz in Zürich. Wir planen und realisieren Bauten unterschiedlichster Typologie und Grössenordnung. Mit unseren Projekten gehen wir auf die Herausforderungen unserer Zeit ein und schaffen nachhaltige, wirtschaftliche und zeitlose Architektur. Dabei legen wir grossen Wert auf eine pragmatische Arbeitsweise in Verbindung mit kreativen Lösungen. Mit unseren Auftraggebern und Partnern pflegen wir eine offene, direkte Kommunikation und schätzen die interdisziplinäre Zusammenarbeit. 

Unser Portfolio umfasst die Planung und Ausführung von Umbauten, Ein- und Mehrfamilienhäusern und grossmassstäblichen Wohnbauprojekten, sowie die Teilnahme an Wettbewerben für Museen, Schulen, Industriebauten und Zentrumsüberbauungen. Neben der Planung und Realisierung von Bauten übernehmen wir Beratungsmandate und erstellen Machbarkeitsstudien.

Kontakt

Studiozurich GmbH Badenerstrasse 141 CH - 8004 ZÜRICH
Phone: +41 (0) 44 545 16 18 Email: mail@lauraschneider.ch

Team

Laura Schneider dipl. Arch. ETH SIA
1998-2004 Architekturstudium an der ETH Zürich
2004-2009 Projektleiterin bei Christ & Gantenbein Architekten, Basel
2009-2014 Arbeitsgemeinschaft mit Markus Haberstroh unter dem Namen Haberstroh Schneider Architekten in Basel
2009-2010 Entwurfsassistentin im ersten Jahreskurs bei Prof. Christian Kerez an der ETH Zürich
2012 Gründung Studiozurich
Seit 2021 Wissenschaftliche Assistentin für Architektur an der FHNW

Mitarbeitende seit Bürogründung:
Caroline Bru, Myrto Xopapa, Danielle Nagila, Christoph Erni, Constanze Kummer, Michael Lüscher, Denis Ferré, Andrea Joller, Gerd Wetzel, Daniel Fuchs, Marta Munoz Mediavilla, Lina Belloviciva, Cristina Gonzalo, Petros Lazaridis, Sabine Gericke, Roxanne de Raeymacker, Anett Szternak, Karsten Linse, Zoi Moutsokou

Auswahl Bauten, Projekte und Wettbewerbe

2024
Umbau einer Wohnung in Wallisellen
Renovation einer Wohnung in Zürich
Wettbewerb Kantonsschule Romanshorn
Wettbewerb Erneuerung und Erweiterung BWZT, Wattwil

2023
Umbau einer Wohnung in Wädenswil
Renovation einer Wohnung in Horgen
Umbau eines Bürogeschosses in Zürich
Wettbewerb Wehntalerstrasse, Zürich

2022
Umbau einer Wohnung, Zürich
Studie Umbau und Aufstockung eines Mehfamilienhauses

2021
Renovation einer Wohnung Kurfirstenstrasse, Zürich
Umbau einer Praxis Birmensdorferstrasse, Zürich
Wettbewerb Quartier de la Concorde secteur T, Genève
Wettbewerb Le Rolliet, Genève

2020
Renovation einer Wohnung Bergstrasse, Zürich
Wettbewerb „Bahnhof Süd“, Rüschlikon, 1. Preis / 2. Rang
Wettbewerb Sekundarschulhaus Im Isengrind, Zürich

2018
Wettbewerb Schulhaus und Mehrzweckhalle, Salgesch, 3. Preis

2017
Wettbewerb MSF Hauptsitz, Genève, Finalisten

2015-2020
„Ribetschi Park“, Immensee
Neubau Wohnüberbauung mit elf Mehr- und vier Einfamilienhäusern

2015-2016
Umbau und Erweiterung eines Bauernhauses Badhöchi, Hinteregg
Wettbewerb Naturhistorisches Museum und Staatsarchiv, Basel, 4. Preis
Wettbewerb Markthalle und Ringkuhkampfarena, Raron

2013-2014
Neubau eines Mehrfamilienhauses Hegetsbergstrasse, Uster
Umbau und Neubau eines Wohn-Atelierhauses Fohrhölzliweg, Uster

2011-2014
Neubau von sechs Einfamilienhäusern, Zénauva

2011-2013
Neubau zwei Zweifamilienhäuser Faidostrasse 11 + 12, Basel

2010-2013
„Ribetschi Park“, Immensee
Vor-/Bauprojekt und Gestaltungsplan Wohnüberbauung mit elf Mehr- und vier Einfamilienhäuser

2009-2010
Umbau und Dachausbau eines Reihenhauses Röschenzerstrasse, Basel

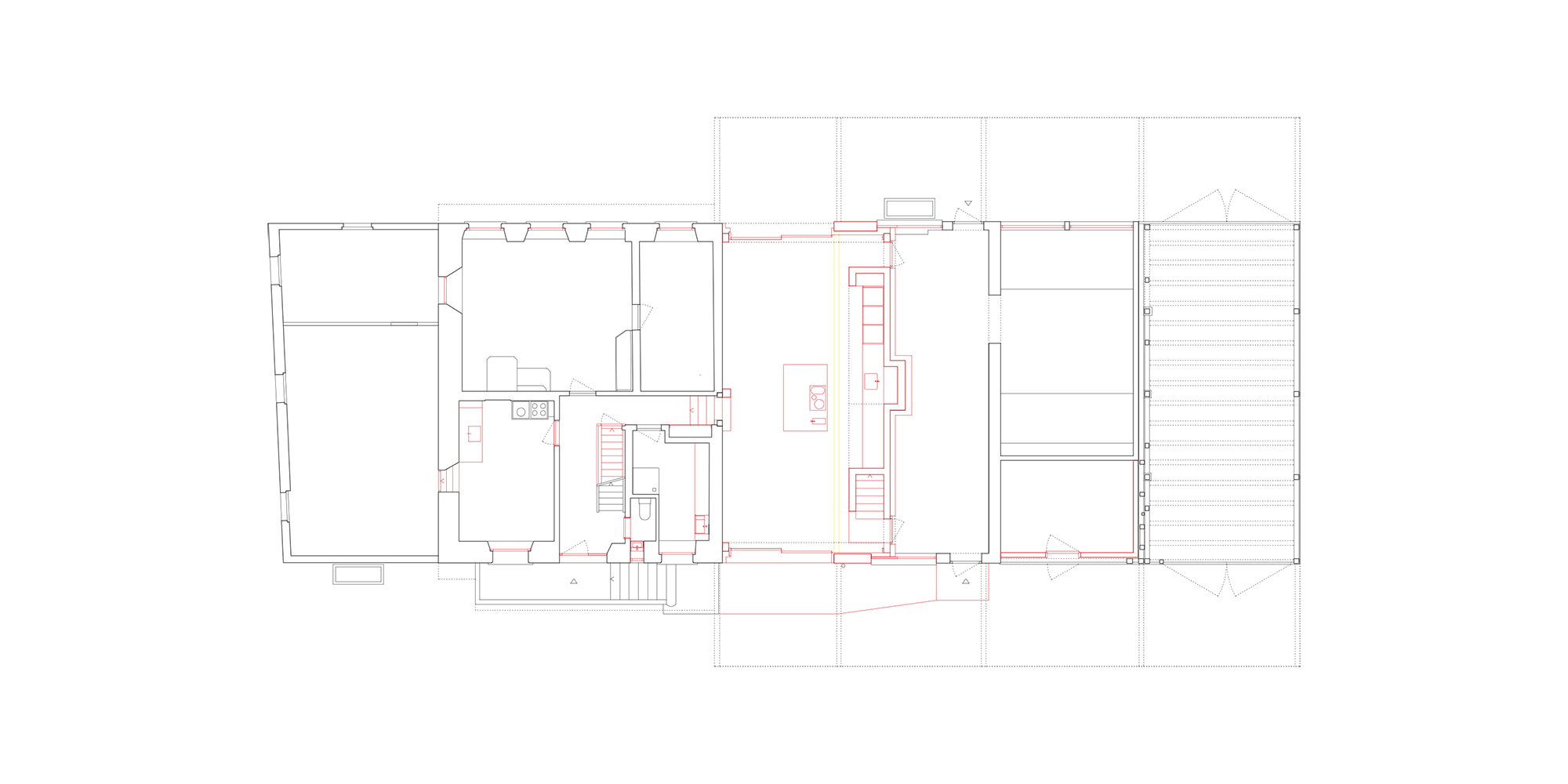
Badhöchi

Umbau und Erweiterung eines Bauernhauses

Dieses Bauernhaus oberhalb des Dorfkerns von Hinteregg ist Zeitzeuge einer ursprünglich kleinräumigen landwirtschaftlichen Mischkultur. Es wurde 1848 erbaut und liegt heute mitten in der Landwirtschaftszone. Mit dem Umbau wird die Wohnfläche innerhalb des Volumens erweitert. Die ursprüngliche Gliederung des Bauerhauses in Werkstatt, Wohntrakt, Tenne und Scheune bleibt erhalten.
Der bestehende Wohntrakt ist massiv gemauert, die Decken sind grösstenteils in Holz ausgeführt. In Küche und Bad ist der Boden betoniert. Die kammerartige Raumtypologie des Wohntraktes wird beibehalten, die historische Bausubstanz sichtbar gemacht und sorgfältig restauriert. Im Erdgeschoss der Tenne ist ein grosszügiger Koch- und Essraum eingefügt. Darüber findet man zwei Schlafzimmer mit Bad.
Mittels Verbindungswegen und Querblicken zwischen Bestand und Erweiterung entstehen neue Raumbezüge und Materialkombinationen.

Auftraggeber/in: Privat
Ort: Hinteregg, ZH
Zeitraum: 2015-2016
Geschossfläche: 302 m2
Bauingenieur: Eitel & Partner GmbH
Weitere Beteiligte: EK Energiekonzepte AG

close

close-white

Laura Schneider Architektur